€180,000
Premium Land Plot

Exclusive Land for Sale

Discover your perfect building plot in beautiful Tassos, Greece

Contact Us Today

Property Details

📍 Location

Prime location in Tassos, Greece with stunning sea views and easy access to amenities

🏢 Development Potential

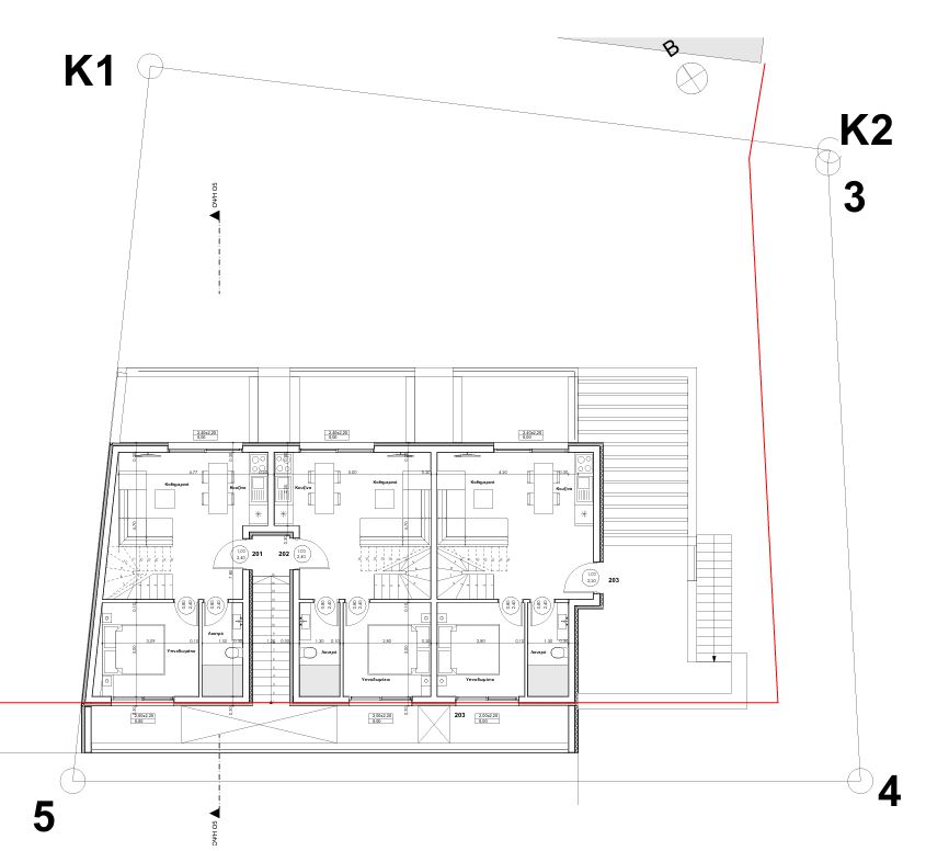
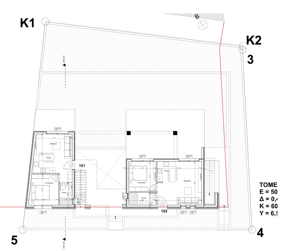
Suitable for 5 apartments with excellent building coefficient of 0.4

📐 Building Areas

Underground: 80m² | Ground floor: 80m² | First floor + attic: 180m²

💰 Investment Value

Excellent investment opportunity with high potential for appreciation

Building Specifications

5

Apartments

0.4

Building Coefficient

340m²

Total Building Area

Underground Floor

80m²

Ground Floor

80m²

First Floor + Attic

180m²

AutoCAD Technical Plan

Detailed AutoCAD technical drawing showing precise measurements and building specifications

Property Video Tour

Location & Accessibility

Prime Location in Tassos

This exclusive land plot is located in one of the most desirable areas of Tassos, Greece. The property offers:

  • Development potential for 5 apartments
  • Building coefficient of 0.4 for optimal development
  • Total building area of 340m² across 3 floors
  • Easy access to main roads and amenities
  • Close proximity to beaches and local attractions
  • Stunning panoramic sea views
  • Peaceful and private setting
  • Excellent investment potential

Price: €180,000

Contact Us

📞 Radu

+40 (723) 555 003

radu@greencon-engineering.ro

📞 Dimitri

+30 697 2999449

info@denas.gr

📞 MIHAI

MIHAI@BATIMAX.RO

💰 Price

€180,000

Call Dimitri Call Radu